Location: Algiers, Algeria
Date: 2019 – 7th term
School: Ecole Polytechnique d’Architecture et d’Urbanisme
Located in a neighbourhood where there is a number of structures that are dedicated for education, culture and leisure(schools, communal library, sport facility….) Mediatrium is a library that completes this grid of facilities and offers a new place for learning, socializing, and connecting the community.
Starting from the public plaza with its inviting curves to the rooftop that has a 360° view on the city and the sea, the structure develops on 7 floors with a diversity of spaces: a multimedia underground that has recording studios, gaming, VR and multi functional rooms, two first floors open on the city with a coffee shop, bookstore and a gallery, a section for each age category (kids, youths, adults) and finally a green accessible rooftop.
The library is organized around an atrium that brings natural day light and ventilation and has stairs that flow in the space allowing us to have a view on each floor as we’re going up and down the building. Floors are also accessible directly from the exterior with stairs that run around the building and connect the street to the rooftop. It animates the facade and offers a new way to see the city.



Geometric structure of the project

Plaza – north side

Site plan

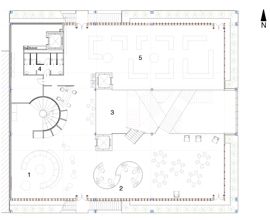
Level 1 floor plan
1-bookstore 2-patio below 3-atrium 4-cafe 5-entrance hall 6-washrooms 7-mechanical room

Main entrance from the plaza

Level 2 floor plan
1-childrens’ story corner 2-toddlers’ play area 3-activities area 4-washrooms 5-public computers 6-children books section 7-atrium

Children’s story corner

level 6 floor plan
1-reading corner 2-public computers 3-atrium 4-washrooms 5-non fiction section

Reading corner

Cross section
1-parking 2-atrium 3-elevator shaft 4-accessible rooftop

South elevation

Green roof section detail

Beam-column connection detail

Plaza – south side