Location: Casbah, Algiers
Date: 2021 – 10th term
School: Ecole Polytechnique d’Architecture et d’Urbanisme
Since many decades, Algiers Casbah, the city’s original core, saw itself become more and more abandoned. Houses are collapsing leaving behind them voids that are weakening the urban fabric. One of these voids is situated in Sidi Remdan, one of the oldest neighbourhoods and doors to the Casbah. Laying in front of a bastion, a remain of the ancient rampart of the medina, it is nowadays used as a parking.
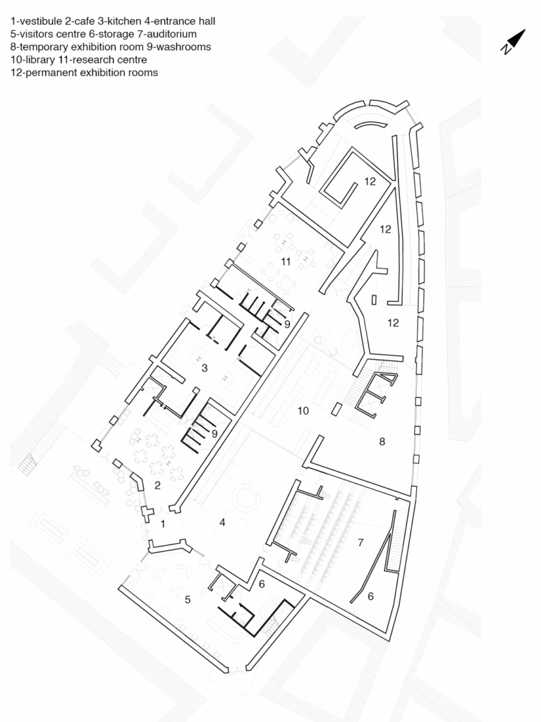
The project aims to consolidate the urban fabric by building the void and marking the entry to the medina while reminding and educating people on the place’s history. The architecture and layout of the building are a reinterpretation of elements from the typical Casbah patio house and military architecture (centered layout, patio, arrow slits, chemin de- ronde, nude brick appearance…). It is also a synthesis of the urban experience of the Casbah, a slopped way with framed views and an alternation of light and shadows till it reaches a culminating point with a view on the city and the sea.




Spatial sequence from the entrance to the top of the bastion, through the exhibition rooms an emulation of the Casbah’s urban environment


Site plan

Entrance level floor plan

Exhibition rooms level floor plan


West elevation

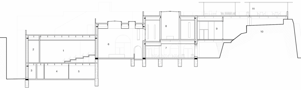
Section passing by the exhibition rooms

section passing by the entrance hall


Transverse building section

Wall section and elevation
