Location: Bedford, NS
Date: 2025, (2nd year Architectural Engineering Technician diploma)
School: Nova Scotia Community College
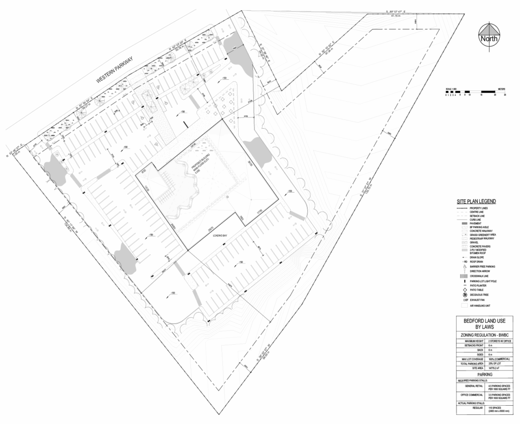
Westway Park III is a two storey commercial building at 90 Western Parkway, Bedford. The project focused on the application of part 3 of the National Building Code of Canada and th CSA standards for accessible design.
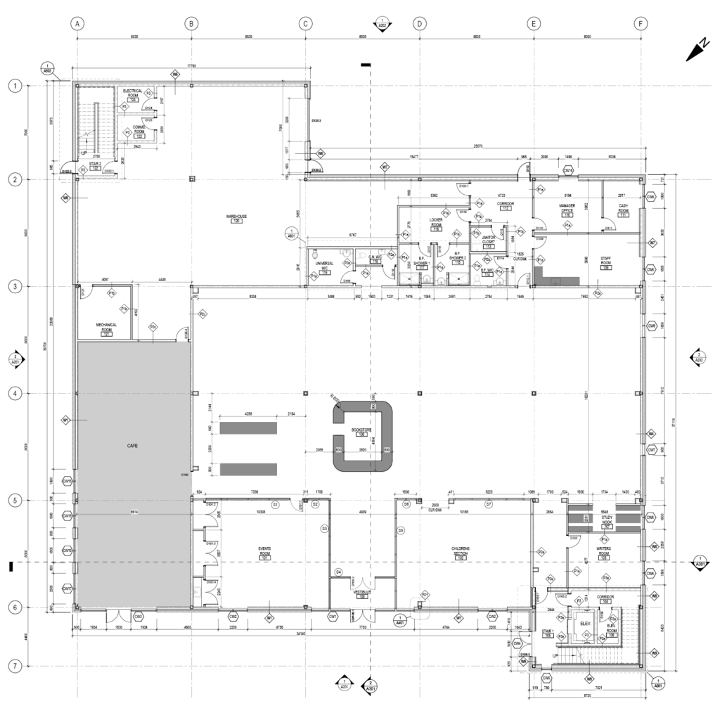
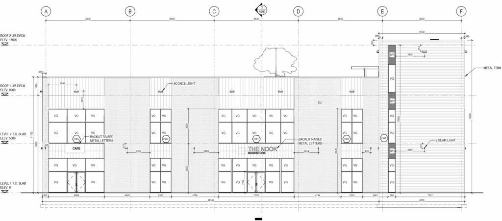
The first floor hosts a bookstore and the second level a law firm that has access to a green roof. The building is complemented with a cafe not designed at this time. The envelop adopts a language of contrast through the use of different materials (brick and metal), opposite material orientation (horizontal corrugated metal and vertical metal panels), and negative/positive space with curtain walls that span the building’s height that also give rhythm to the facade.


Building front

Site plan

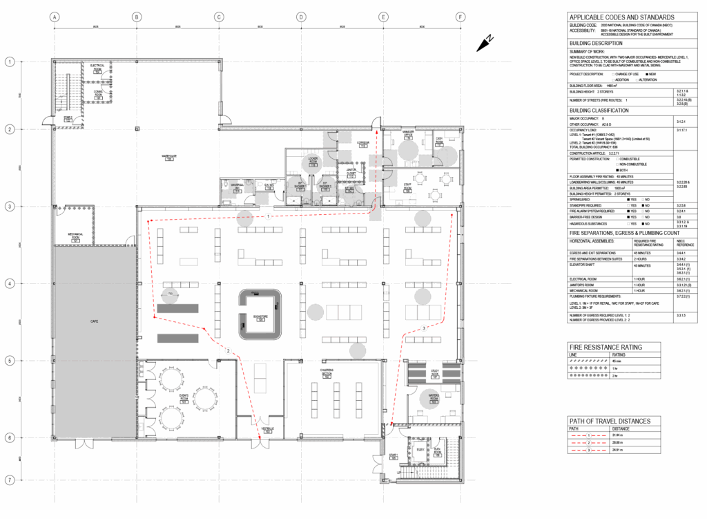
Path of travel and code matrix

Bookstore checkout area

Level 1 floor plan

South elevation

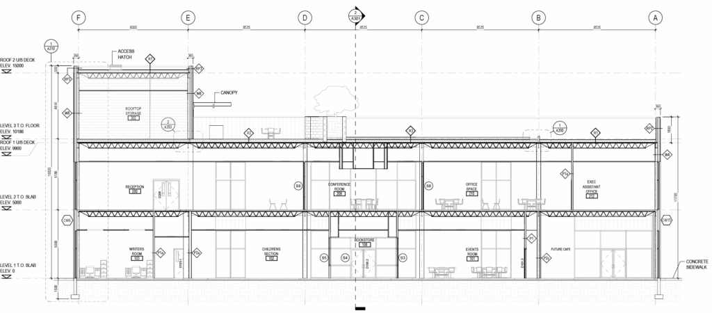
Longitudinal section

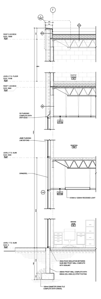
Wall section

Roof curb section detail

Roof parapet section detail

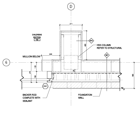
Plan detail

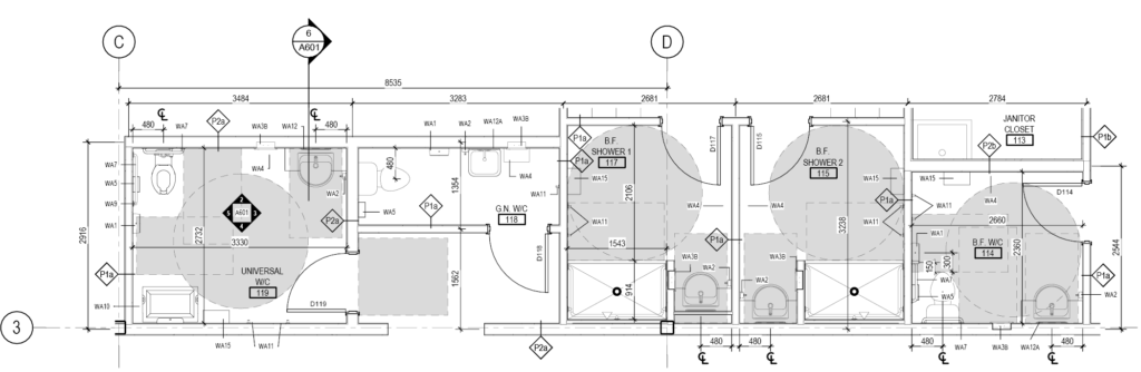
Washrooms and shower enlarged plan

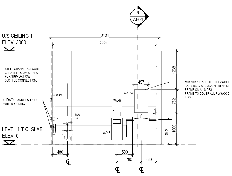
Universal washroom north elevation

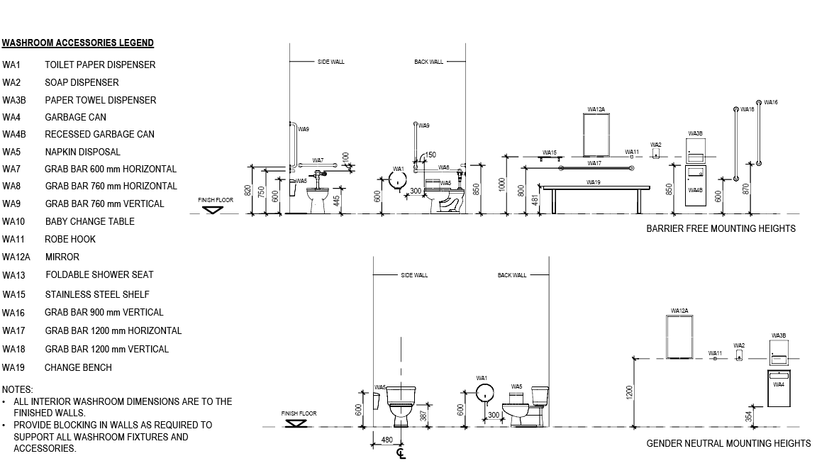
Bathroom accessories mounting heights and legend